Büro mieten: Place de la Clairière 1, 1023 Crissier | 121m²

Büro
Mietaufschlüsselung
Miete
CHF 2'218
Gesamtfläche
121
Verfügbar ab
Nach Vereinbarung
Adresse
Place de la Clairière 1
1023 Crissier
Dokumente

Details

Maximale Bodenbelastung300 kg/m²
Baujahr2025

Übersicht

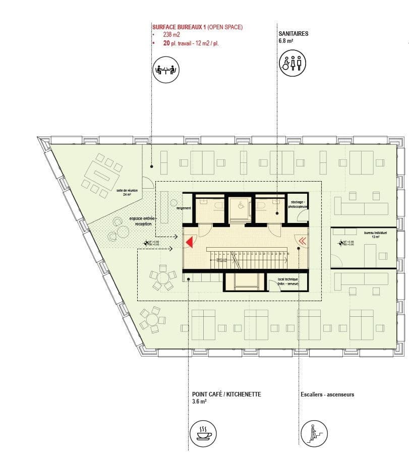
VaudBureaux modernes avec vue sur le Lac de 100 à 239 m2 !

Situé dans le nouveau quartier de l'Orée à Crissier, ces bureaux lumineux d'angles bénéficient d'une vue magnifique sur le lac et les montagnes.

Bureaux

Des surfaces de 100 à 239 m2 par étage peuvent être combiné au gré du preneur.

Variante aménagement de base:

  • Distribution de chaleur dans la surface
  • Sanitaires partagés à l'étage
  • Monobloc double flux, RC, batterie chaude/froide et électricité avec point de raccordement à la sortie des gaines
  • Mur/Sol/Plafond brut
Semi-aménagée (CHF +40/m2 p.an):

  • Revêtement de sol (moquette ou vinyl)
  • Cuisine/Kitchenette
  • Murs peints
  • Distribution de ventilation dans la surface
Quartier

  • 1'000 habitants (420 appartements)
  • Déjà sur place : école primaire, garderie, EMS, médecin généraliste, physio, coiffeur, barbier, kiosk, épicerie, pizzeria, esthétique, massage, etc.
  • 7'300 m2 surfaces commerciales
  • 600 places de parc, dont places de parc visiteurs extérieures: 40 + env. 100 places intérieures courte et longue durée.
  • Accès facile aux transports en commun (BHNS)
  • 1km de l'autoroute A1
  • Divers parkings publics/privés à l'extérieure et à l'intérieure
  • Quartier moderne et équipé avec panneaux photovoltaïques, bornes de recharge pour véhicule électrique, emplacement Mobility Car Sharing et station PubliBike.
N'hésitez pas à nous contacter pour une visite des locaux !

Veuillez découvrir notre offre sous www.loreecrissier.ch

Ausstattung

Ausblick
Aufzug
Parkplatz
Garage
Rollstuhlgängig

Standort

Place de la Clairière 1, 1023 Crissier
Publikationsdatum: 28. April 2025
Objekt-ref.: 433..9999
FranziskaKunz
Franziska Kunz
Orée - Equipe de commercialisation