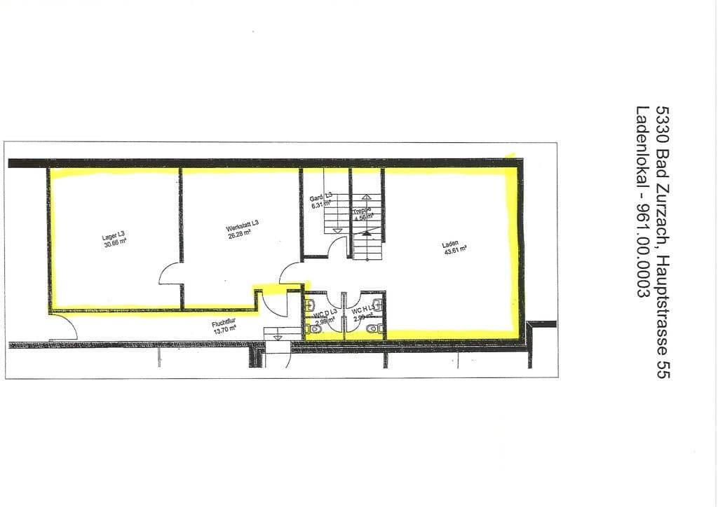
173 m² Ladenfläche in Bad Zurzach, Hauptstrasse 55

Ladenfläche
Mietaufschlüsselung
Nettomiete
CHF 1'800
Nebenkosten
CHF 300
Miete
CHF 2'100
Gesamtfläche
173
Verfügbar ab
Nach Vereinbarung
Adresse
Hauptstrasse 55
5330 Bad Zurzach
Dokumente

Details

Stockwerk0

Übersicht

Attraktives Ladenlokal im Zentrum von Bad Zurzach

In mitten des Dorfzentrums, angrenzend an der Quellen-Apotheke, vermieten wir ein attraktives Ladenlokal.

- Erdgeschoss mit grossen Schaufenster

- aktueller Bodenbelag: Teppich

- 3 grosse Nebenräume/Lagerräume mit einer Gesamtfläche von knapp 100m2

- WC-Anlagen im Untergeschoss vorhanden

- Einstellplätze können bei Bedarf für CHF 100.00 pro Monat dazu gemietet werden.

Bitte beachten Sie, dass die Fläche zur Zwischennutzung befristet bis 31.12.2027 vermietet wird.

Haben wir Ihr Interesse geweckt? Dann kontaktieren Sie uns um die Besichtigungsinformationen zu erhalten.

Ausstattung

Toiletten
Wasseranschluss
Abwasseranschluss
Stromversorgung

Standort

Hauptstrasse 55, 5330 Bad Zurzach
Publikationsdatum: 28. März 2026
Objekt-ref.: 25713.01.400020
PriveraAG
Privera AG
Privera AG