Ladenfläche mieten: Davidstrasse 3, 9000 St. Gallen | 117m²

Ladenfläche
Mietaufschlüsselung
Miete
CHF 2'740
Gesamtfläche
117
Verfügbar ab
Nach Vereinbarung
Adresse
Davidstrasse 3
9000 St. Gallen
Dokumente

Details

Stockwerk0

Übersicht

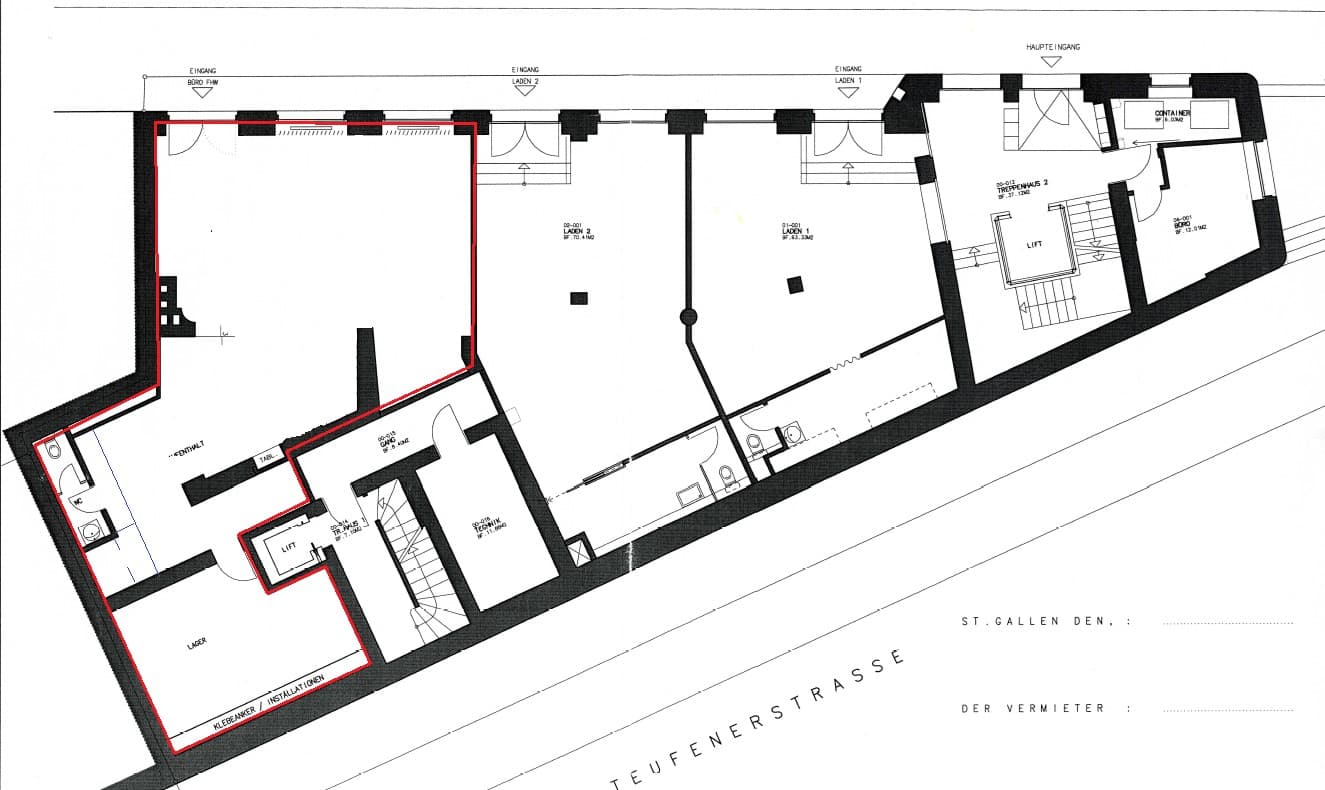
Ihre Chance - Ladenlokal an erstklassiger Lage

Wir vermieten an der Davidstrasse 3 in St. Gallen ein grosszügiges Ladenlokal im Erdgeschoss.

Die attraktive Gewerbeliegenschaft liegt im Stadt-Zentrum und ist zu Fuss wie auch mit öffentlichen Verkehrsmitteln und dem Fahrzeug gut erreichbar.

Highlights der Fläche:

- eigener Eingang

- grosszügige Schaufenster

- WC-Anlage

- Lagerraum

Bitte beachten Sie, dass die Räumlichkeiten nicht für einen Gastrobetrieb genutzt werden können.

Haben wir Ihr Interesse geweckt? Wir freuen uns auf Ihre Kontaktaufnahme.

Ausstattung

Kabelfernsehen
Aufzug
Tierfreundlich

Standort

Davidstrasse 3, 9000 St. Gallen
Publikationsdatum: 31. Januar 2025
Objekt-ref.: 6562.04.0003
MartinaGähwiler
Martina Gähwiler
Livit AG