Louer Bureau: Route de Chésalles 48, 1723 Marly | 150m²

Bureau
Détail du loyer
Loyer
sur demande
Superficie totale
150
Disponible à partir de
1 janvier 2026
Adresse
Route de Chésalles 48
1723 Marly

Détails

Étage1

Aperçu

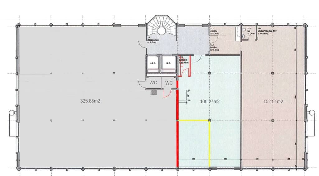
Spacieuse surface commerciale à louer !

Surface spacieuse d'environ 150m2, située dans une zone industrielle à Marly, proche d'une rivière.

Idéale pour tous types d'activités, tant administratives, médicales, qu'artisanales, elle offrira un cadre de travail agréable à vos collaborateurs.

La surface se compose comme suit :

  • Vaste entrée
  • 1 open space d'environ 137m2
  • Cuisine
  • WC séparé

Aménageable au gré du preneur.

Sa situation, proche de la rivière, vous permettra de prendre votre pause dans un coin de nature, au calme, pour bien vous ressourcer. Des restaurants se trouvent également à proximité.

De l'autre côté de la rivière se trouve aussi la toute nouvelle zone industrielle de Marly avec des magasins, tea-room, restaurants, piscine, etc.

Places de parc disponibles en sus.

Si ce bien vous intéresse, nous vous conseillons volontiers pour la planification et la réalisation de votre projet.

Nous nous réjouissons de votre prise de contact.

Équipement

Ascenseur
Parking

Lieu

Route de Chésalles 48, 1723 Marly
Date de publication: 21 novembre 2025
Réf. de l'objet: ..62002.03.0103
CharlèneDreyer
Charlène Dreyer
Apleona Suisse SA