92 m² Industrie à Carrouge VD, Route du Borgeau 20

Industrie
Détail du loyer
Loyer net
CHF 1'450
Charges
CHF 50
Loyer
CHF 1'500
Surface utilisable
92
Disponible à partir de
Sur demande
Adresse
Route du Borgeau 20
1084 Carrouge VD

Détails

Étage1

Aperçu

À louer - Box modulable, sur deux niveaux - Jorat-Mézières

Box artisanal idéalement situé à la Route de Borgeau à Carrouge, dans un environnement calme et facilement accessible.

À quelques minutes du centre de Carrouge. Environ 10 minutes d'Oron, 15 minutes de Moudon , 20 minutes de Lausanne.

Idéal pour artisan, stockage, petite activité indépendante ou dépôt de matériel. Accès pratique en véhicule utilitaire, stationnement aisé à proximité.

Équipements de base :

- Tableau électrique individuel (triphasé, 16 A / 30 mA)
- Arrivées en attente pour eau claire et eaux usées
- Pré-équipement pour raccordement internet
- Fenêtres en façade avec stores extérieurs à lamelles


Sur demande, il est possible d'effectuer des aménagements complémentaires, notamment :

- Création d'un local sanitaire avec WC et douche
- Installation d'une petite kitchenette
- Système de chauffage/climatisation (PAC ou climatiseur réversible)


1 place de parc obligatoire en sus (CHF 50.00 / mois)


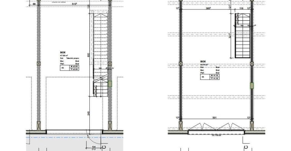
Description des surfaces :

Rez-de-chaussée d'env. 48 m², hauteur libre env. 4,00 m, charge utile 1'000 kg/m²
Étage d'env. 44 m², hauteur libre de 2,27 m à 3,59 m, charge utile 300 kg/m²

Dimensions intérieures : env. 4,98 m x 9,65 m

Accès par porte sectionnelle (4,00 m x 3,50 m) avec porte de service intégrée

Escalier métallique donnant accès à l'étage

Les personnes intéressées sont invitées à manifester leur intérêt en nous adressant un bref descriptif des intentions d'affectation souhaitées. Nous les recontacterons pour planifier la suite (visite, constitution du dossier, etc.).

Lieu

Route du Borgeau 20, 1084 Carrouge VD
Date de publication: 6 mars 2026
Réf. de l'objet: 0382.400230
M&Bgérance immobilière SA
M&B gérance immobilière SA
M&B gérance immobilière SA