2'000 m² Industrie à Versoix, Route des Fayards 282-284
Industrie
Détail du loyer
Loyer
CHF 35'000
Surface utilisable
2'000m²
Disponible à partir de
Sur demande
Adresse
Route des Fayards 282-284
1290 Versoix
1290 Versoix
Aperçu
Surfaces de stockage sécurisées et modulables à louer à Versoix
Surfaces de stockage sécurisées et modulables – idéales pour entreposage de marchandises et équipements
Ces surfaces de stockage offrent une solution parfaitement adaptée aux entreprises ayant besoin d’espaces dédiés à l’entreposage de marchandises, de matériel ou d’archives, dans un environnement fonctionnel et techniquement performant.
Grâce à des charges au sol élevées, des hauteurs sous plafond généreuses et une forte modularité, ces lots répondent aux exigences du stockage professionnel.
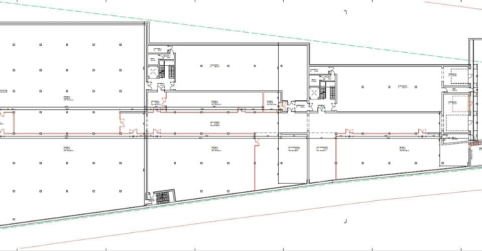
Caractéristiques des surfaces de stockage :
?? Lot 1 – Stockage grande hauteur / charges lourdes
Superficie : 2’096 m², divisible dès 109 m²
Hauteur sous plafond : 6,80 m
Charge au sol : 2’000 kg/m²
Idéal pour le stockage de palettes, de marchandises lourdes ou de volumes importants, de produits sensibles
Accès de plain-pied
Porte sectionnelle
?? Lot 2 – Stockage standard
Superficie : 1’019 m², divisible dès 306 m²
Hauteur sous plafond : 3,35 m
Charge au sol : 500 kg/m²
Adapté au stockage de matériel, d’archives ou de marchandises légères à intermédiaires
Monte-charge 1T6
Atouts principaux
Immeuble neuf
Surfaces spécialement dédiées au stockage
Lots divisibles et flexibles selon les besoins
Hauteurs sous plafond optimisées pour le rayonnage
Charges au sol adaptées au stockage professionnel
Configuration rationnelle facilitant l’exploitation logistique
Pourquoi CBRE ?
Analyse détaillée de vos besoins
Accès à des opportunités off-market
Comparatif du marché et conseil stratégique
Accompagnement complet dans la négociation
Contactez-nous dès aujourd’hui pour obtenir la brochure complète ou organiser une visite
Surfaces de stockage sécurisées et modulables – idéales pour entreposage de marchandises et équipements
Ces surfaces de stockage offrent une solution parfaitement adaptée aux entreprises ayant besoin d’espaces dédiés à l’entreposage de marchandises, de matériel ou d’archives, dans un environnement fonctionnel et techniquement performant.
Grâce à des charges au sol élevées, des hauteurs sous plafond généreuses et une forte modularité, ces lots répondent aux exigences du stockage professionnel.
Caractéristiques des surfaces de stockage :
?? Lot 1 – Stockage grande hauteur / charges lourdes
Superficie : 2’096 m², divisible dès 109 m²
Hauteur sous plafond : 6,80 m
Charge au sol : 2’000 kg/m²
Idéal pour le stockage de palettes, de marchandises lourdes ou de volumes importants, de produits sensibles
Accès de plain-pied
Porte sectionnelle
?? Lot 2 – Stockage standard
Superficie : 1’019 m², divisible dès 306 m²
Hauteur sous plafond : 3,35 m
Charge au sol : 500 kg/m²
Adapté au stockage de matériel, d’archives ou de marchandises légères à intermédiaires
Monte-charge 1T6
Atouts principaux
Immeuble neuf
Surfaces spécialement dédiées au stockage
Lots divisibles et flexibles selon les besoins
Hauteurs sous plafond optimisées pour le rayonnage
Charges au sol adaptées au stockage professionnel
Configuration rationnelle facilitant l’exploitation logistique
Pourquoi CBRE ?
Analyse détaillée de vos besoins
Accès à des opportunités off-market
Comparatif du marché et conseil stratégique
Accompagnement complet dans la négociation
Contactez-nous dès aujourd’hui pour obtenir la brochure complète ou organiser une visite
Lieu
Route des Fayards 282-284, 1290 Versoix
Date de publication: 24 avril 2026
Réf. de l'objet: 60936.855993
Picque Victor
CBRE Genève