382 m² Hospitality in Geneva, CHEMIN DU PRE-CARTELIER 1

Hospitality
Rent breakdown
Rent
CHF 14'325
Usable area
382
Available from
Upon request
Address
CHEMIN DU PRE-CARTELIER 1
1202 Geneva

Details

Floor0

Overview

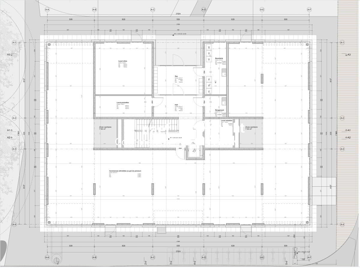
Arcade d'env 382 m² à louer - Petit-Saconnex

Location d'une surface commerciale divisible au rez de chausée de 382 m² située au chemin du Pré-Cartelier 1, 1202 à Genève pour un loyer de 450.- CHF/m²/an

Deux dépôts totalisant 111 m², un de 87 m² et l'autre de 24 m² situés au sous-sol du bâtiment sont également disponibles à la location pour un loyer de 150.- CHF/m²/an

Le chemin du Pré-cartelier 1, se trouve dans le quartier du Petit-Saconnex sur la rive droite. C'est une zone résidentielle et commerciale qui se trouve à proximité de la gare Cornavin et du quartier des Nations.

Caractéristiques du bien :

- Commerce (divisible au gré du preneur)

- Surface : 382m²

- Espace ouvert au rez- de chausée, facilement aménageable selon vos besoins

- Belles vitrines sur rue, offrant une excellente visibilité

- Surface commerciale traversante

- 3 portes d'entrées privatives à l'extérieur du bâtiment qui donnent directement sur la surface commerciale

- 1 porte d'entrée privative sur la surface commerciale à l'intérieur du bâtiment

Affectation :

Activités commerciales (ouvertes au public), restauration froide uniquement.

Location

CHEMIN DU PRE-CARTELIER 1, 1202 Geneva
Publication date: April 27, 2026
Object-ref.: EC.44159..
Servicecommercial
Service commercial
Naef Commercial Knight Frank