152 m² Office in Bern, Monbijoustrasse 29

Office
Rent breakdown
Net rent
CHF 4'500
Additional expenses
CHF 500
Rent
CHF 5'000
Usable area
152
Available from
Upon request
Address
Monbijoustrasse 29
3011 Bern

Details

Floor3

Overview

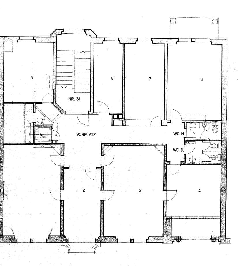
Ihr neuer Standort im Herzen von Bern

An zentraler Lage im attraktiven Monbijou vermieten wir nach Vereinbarung eine spannende Bürofläche im 3. Obergeschoss.

Das Mietobjekt bietet folgende Vorzüge:

- grosszügiger Grundriss mit 8 Bürozimmer

- Separate Teeküche

- Div. Einbauschränke

- WC Anlage Männer und Frauen getrennt (saniert)

- Mitbenutzung Garten

- Lift

Die Bus- und Tramstation Monbijou befindet sich direkt vor der Haustüre.

Gerne zeigen wir Ihnen die Räumlichkeiten und freuen uns auf Ihre Kontaktaufnahme.

Equipment

Outlook
Elevator
Balcony
Toilets

Location

Monbijoustrasse 29, 3011 Bern
Publication date: January 21, 2026
Object-ref.: 7935.01.0301
NadiaSchüpbach
Nadia Schüpbach
Apleona Schweiz AG