71 m² Office in Männedorf, Emil-Staub-Str. 5 - Bluemax B

Office
Rent breakdown
Net rent
CHF 1'633
Additional expenses
CHF 196
Rent
CHF 1'829
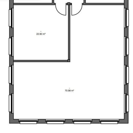
Total area
71
Available from
Upon request
Address
Emil-Staub-Str. 5 - Bluemax B
8708 Männedorf

Details

Floor1

Overview

Ihre neue Mietfläche - ideal für Ateliers, Büros oder Praxen

Wir vermieten einen vielseitig nutzbaren und stilvollen Gewerberaum mit ca. 70m2 an zentraler Lage in Männedorf.

Die Fläche liegt im 1. Obergeschoss. Die Fenster sind alle ebenfalls so konzipiert, dass der Raum mit Tageslicht durchflutet wird. Die Fläche eignet sich ideal für Ateliers, Büros oder Praxen.

Es erwartet Sie aktuell folgende Ausstattung:

  • PVC-Boden mit Charme
  • Helle Räume mit grossen Fenstern
  • Stromanschlüsse sind vorhanden
  • Toilettenanlage zur Mitbenutzung
  • Zentrale Lage mit guter ÖV-Anbindung
  • Besucherparkplätze direkt vor dem Haus
  • Einstellplatz kann dazu gemietet werden

Es besteht jedoch auch die Möglichkeit die Flächen im Rohbauzustand anzumieten.

Für die Vereinbarung eines Besichtigungstermins, melden Sie sich

bitte bei Herr Rasic unter Tel. +41 44 878 78 05 , tagsüber zwischen 09:00 bis 16:00 Uhr.

Wir freuen uns auf Ihre Kontaktaufnahme!

Location

Emil-Staub-Str. 5 - Bluemax B, 8708 Männedorf
Publication date: November 3, 2025
Object-ref.: 55052.05.0101
DenisRasic
Denis Rasic
Apleona Schweiz AG