Office in Willisau, Bahnhofplatz 4 + 5

Office
Rent breakdown
Rent
upon request
Total area
On request
Available from
Upon request
Address
Bahnhofplatz 4 + 5
6130 Willisau

Overview

Attraktive Büroflächen direkt am Bahnhof Willisau

Das repräsentative Wohn- und Geschäftshaus befindet sich in Willisau direkt beim Bahnhof und überzeugt mit einer sehr guten Verkehrserschliessung. Für Ihren Mittags-Lunch befinden sich Restaurants und Bäckereien in Gehdistanz. Ihre Freizeit kommt ebenfalls nicht zu kurz. Diverse Sport- und Erholungsmöglichkeiten befinden sich nur wenige Gehminuten entfernt.

Profitieren Sie von einer frequentierten Lage direkt am Bahnhof Willisau. Hier werden Sie gesehen!

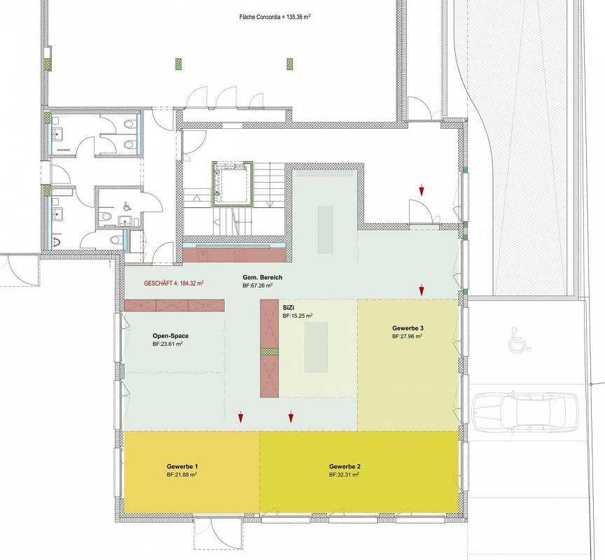
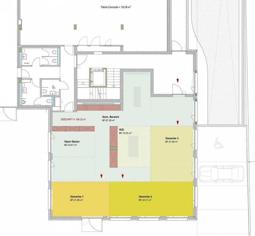
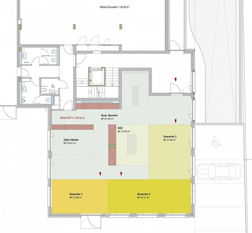
Die helle und flexibel einteilbare Fläche befindet sich im Erdgeschoss und verfügt über 184 m².

Hier bestimmen Sie. Ob Büroräumlichkeiten, Ausstellungsfläche oder Verkaufsfläche, Sie können die Räumlichkeiten nach Ihren Bedürfnissen ausbauen.

Nebst einer bereits bestehenden Toilettenanlage zur Mitbenutzung bietet Ihnen das Wohn- und Geschäftshaus genügend Parkplätze für Sie und Ihre Kunden.

Es besteht auch die Möglichkeit, nur einen Teil zu mieten.

Interessiert? Gerne zeigen wir Ihnen die repräsentativen Räumlichkeiten bei einem unverbindlichen Besichtigungstermin.

Location

Bahnhofplatz 4 + 5, 6130 Willisau
Publication date: January 6, 2026
Object-ref.: 5506-IBBE-U02..mig-164-4927131
StefanMüller
Stefan Müller
Truvag AG