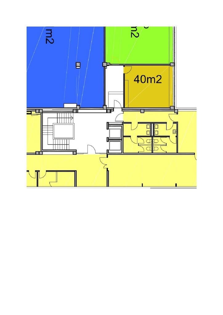
40 m² Büro in Dietlikon, Industriestr. 31 (Trakt I)

Büro
Mietaufschlüsselung
Nettomiete
CHF 550
Nebenkosten
CHF 163
Miete
CHF 713
Gesamtfläche
40
Verfügbar ab
Sofort
Adresse
Industriestr. 31 (Trakt I)
8305 Dietlikon

Details

Stockwerk2
Letzte Renovierung2010

Übersicht

Archivräumlichkeit in Bestlage zu vermieten

Im 3. Obergeschoss dieses Geschäftshauses mitten in Dietlikon vermieten wir eine helle, ca. 40m2 grosse Archivlfäche.

Ihre Vorteile auf einen Blick:

- direkt an der Hauptstrasse

- hervorragende Anbindung an Autobahn und den öffentlichen Verkehr

- Zugang über Treppenhaus und Lift

Haben wir Ihr Interesse geweckt?

Dann zögern Sie nicht und kontaktieren Sie uns für einen unverbindlichen Besichtigungstermin oder weitere Informationen.

Ausstattung

Ausblick
Aufzug
Parkplatz
Garage
Rollstuhlgängig
Stromversorgung

Standort

Industriestr. 31 (Trakt I), 8305 Dietlikon
Publikationsdatum: 2. April 2026
Objekt-ref.: 98095.01.0206
MatteoEnder
Matteo Ender
Apleona Schweiz AG