105 m² Gewerbe in Heerbrugg, Widnauerstrasse 4

Gewerbe
Mietaufschlüsselung
Miete
auf Anfrage
Gesamtfläche
105
Verfügbar ab
Sofort
Adresse
Widnauerstrasse 4
9435 Heerbrugg
Dokumente

Details

Stockwerk0
Baujahr2016

Übersicht

Flexibel nutzbare Gewerbefläche/Büroräume an gut frequentierter Lage

Der Gewerberaum liegt an zentraler Lage in unmittelbarer Nähe zum Bahn- und Bushof Heerbrugg. Die Widnauerstrasse wirkt attraktiv und ist stark frequentiert. Somit sind wichtige Voraussetzungen für einen erfolgsversprechenden Gewerbestandort erfüllt.

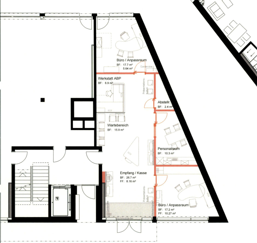
Die Gewerbefläche befindet sich im Erdgeschoss und ist zur Widnauerstrasse hin orientiert. Den Abschluss zu dieser einladend gestalteten Strasse bildet eine grosszügige Glasfront.

Es steht eine Gewerbefläche von 105 m2 zur Verfügung. Die Räumlichkeiten bieten eine lebhafte, sichtbare Strassenseite und eine ruhige Seite zum begrünten Innenhof. Sie eignen sich daher für unterschiedliche Nutzungen wie Büro, Verkauf, Schulungs- oder Praxisräume. Ausserdem steht eine WC-Anlage zur Mitbenutzung zur Verfügung.

Kostenpflichtige Kundenparkplätze stehen im Untergeschoss in der Tiefgarage zur Verfügung und sind über Lift und Treppenhaus direkt mit den Erdgeschossflächen verbunden.

Wir freuen uns auf Ihre Kontaktaufnahme.

Ausstattung

Teeküche
Stockwerk Toilette
Wasseranschluss

Standort

Widnauerstrasse 4, 9435 Heerbrugg
Publikationsdatum: 9. Februar 2026
Objekt-ref.: 2460.04.0002
FlorianRothauge
Florian Rothauge
St.Galler Pensionskasse