Hobbyraum in Bern, Effingerstr. 16

Hobbyraum
Mietaufschlüsselung
Nettomiete
CHF 630
Nebenkosten
CHF 205
Miete
CHF 835
Gesamtfläche
Auf Anfrage
Verfügbar ab
Nach Vereinbarung
Adresse
Effingerstr. 16
3008 Bern

Details

Stockwerk-1

Übersicht

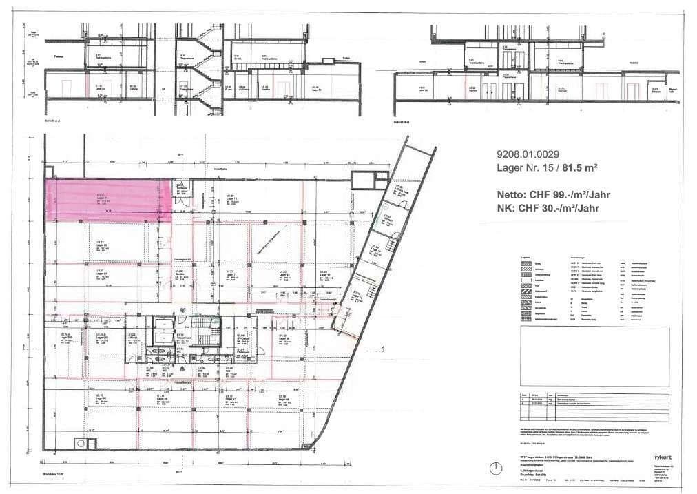
Lagerräume im Herzen von Bern

Im Untergeschoss unseres Geschäftshauses im City West, vermieten wir

einen Lagerraum - ideal für die Lagerung von Möbel, Geräten etc.

Der Raum ist trocken und nicht beheizt und kann über eine Zufahrt direkt von der Einstellhalle sowie über das Treppenhaus erreicht werden.

Der Lagerraum verfügt über folgende, praktische Vorzüge:

+ Stromanschluss

+ Beleuchtung

+ Personenlift

+ Parkingmöglichkeiten im Gebäude

+ Ideale Erschliessung an den öffentlichen Verkehr und in Gehminuten zum Hauptbahnhof Bern

Gerne freuen wir uns auf Ihren Anruf und führen Sie bei einer persönlichen Besichtigung durch die Räumlichkeiten.

Ausstattung

Kabelfernsehen
Rollstuhlgängig
Toiletten
Tierfreundlich

Standort

Effingerstr. 16, 3008 Bern
Publikationsdatum: 24. Februar 2026
Objekt-ref.: 9208.01.0029
BenjaminAndriollo
Benjamin Andriollo
Apleona Schweiz AG