Hobbyraum in Therwil, Helvetierstrasse 23

Hobbyraum
Mietaufschlüsselung
Nettomiete
CHF 360
Nebenkosten
CHF 50
Miete
CHF 410
Gesamtfläche
Auf Anfrage
Verfügbar ab
1. Mai 2026
Adresse
Helvetierstrasse 23
4106 Therwil

Details

Stockwerk-1

Übersicht

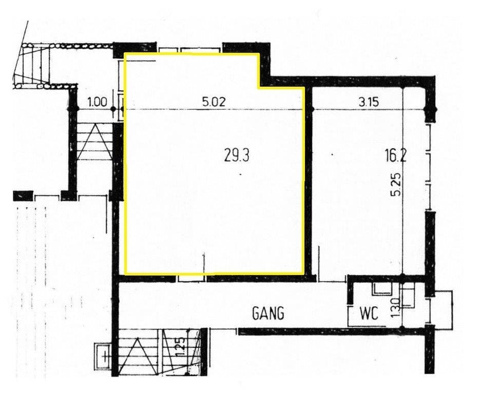
Hobbyraum / Atelier

In ruhigem Wohnquartier vermieten wir nach Vereinbarung einen Platz im Untergeschoss zum Arbeiten, Malen, Nähen oder für ein anderes, ruhiges Hobby.

Der Raum ist über das Treppenhaus erreichbar, hat Tageslicht, Stromanschluss und Fussbodenheizung. Im Gang steht den Mietern des UG ein WC mit Lavabo zur Mitbenutzung zur Verfügung.

Da sich der Hobbyraum in einem Wohnhaus befindet, sind die üblichen Ruhezeiten entsprechend einzuhalten und Rücksichtnahme auf die Mitmieter wichtig und erforderlich.

ES IST KEIN WOHNOBJEKT!

Sie sind auf der Suche nach genau einem solchen Objekt? Rufen Sie uns an und vereinbaren einen Besichtigungstermin.

Standort

Helvetierstrasse 23, 4106 Therwil
Publikationsdatum: 24. Februar 2026
Objekt-ref.: 83694.01.9001
TanjaSchäfli
Tanja Schäfli
Apleona Schweiz AG