Praxis in Solothurn, Dornacherplatz 15

Praxis
Mietaufschlüsselung
Nettomiete
CHF 600
Nebenkosten
CHF 90
Miete
CHF 690
Nutzfläche
Auf Anfrage
Verfügbar ab
Sofort
Adresse
Dornacherplatz 15
4500 Solothurn

Details

Stockwerk3

Übersicht

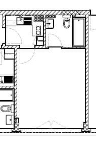
Praxisraum an Top-Lage in Solothurn

Suchen Sie den idealen Standort für Ihre Praxis, Ihr Büro oder Ihr Geschäft?

Dann sind diese vielseitig nutzbaren Flächen genau das Richtige für Sie!

Wir vermieten per sofort oder nach Vereinbarung diese moderne und geräumige Fläche am Dornacherplatz 15 in Solothurn.

Die Räumlichkeit befinden sich im 3. Obergeschoss und bieten Ihnen folgende Vorzüge:

- Helle Fläche

- Einbauschrank im Eingang vorhanden

- Nasszelle mit Badewanne

- Lift vorhanden

- Parking in unmittelbarer Nähe

Die Liegenschaft befindet sich an Top-Lage mit hoher Fussgängerfrequenz und guter Sichtbarkeit. Öffentliche Verkehrsmittel sowie Parkmöglichkeiten befinden sich in unmittelbarer Nähe.

Wir freuen uns auf Ihre Kontaktaufnahme und vereinbaren gern einen Besichtigungstermin vor Ort.

Die Bilder können vom Mietobjekt abweichen.

Ausstattung

Aufzug

Standort

Dornacherplatz 15, 4500 Solothurn
Publikationsdatum: 9. April 2026
Objekt-ref.: 72.15.1032
StefanieRey
Stefanie Rey
Niederer AG Filiale Solothurn