1'916 m² Dépôt à Allschwil, Gewerbestrasse 25

Dépôt
Détail du loyer
Loyer
sur demande
Superficie totale
1'916
Disponible à partir de
Sur demande
Adresse
Gewerbestrasse 25
4123 Allschwil
Documents

Aperçu

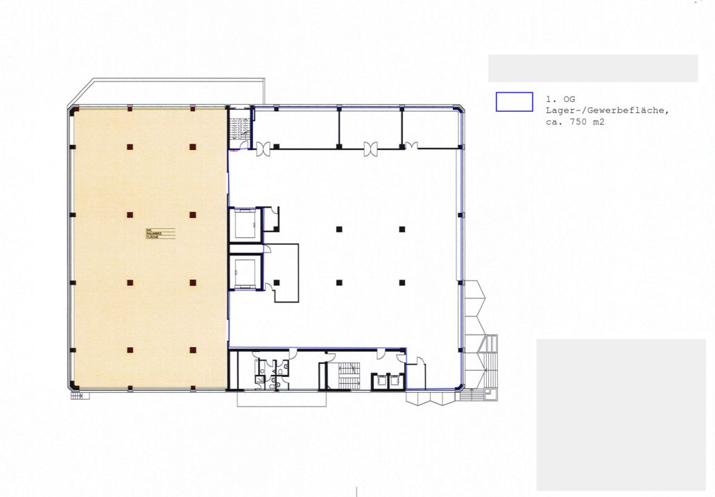
Lager-/Logistikflächen im EG/OG

Zur Vermietung steht eine Lager- und Logistikfläche an attraktiver Makrolage in Allschwil. Die Flächen sind folgendermassen aufgeteilt:

  • Erdgeschoss - 1'166 m2
  • Obergeschoss - 750 m2


Die Flächen zeichne sich durch folgende Eigenschaften aus:
  • Deckenhöhen 7m und 14m im EG
  • Deckenhöhe 3.25 im 1.OG
  • Hohe Bodenlasten
  • 4 + 1 Anlieferrampen
  • Eigene WC-Anlagen/Umkleiden
  • Kleiner Büroteil


Das NK-Akonto beträgt CHF 15 m2pa.

Alle Beträge verstehen sich zzgl. 8.1% MwSt.


Gerne zeigen wir Ihnen diese spannende Gelegenheit vor Ort.

Lieu

Gewerbestrasse 25, 4123 Allschwil
Date de publication: 13 février 2026
Réf. de l'objet: 83412783.83412783.83412783
ThomasEichelmann
Thomas Eichelmann
Eichelmann Real Estate