Ladenfläche mieten: Via la Val 1, 7013 Domat/Ems | 202m²

Ladenfläche
Mietaufschlüsselung
Nettomiete
CHF 3'198
Nebenkosten
CHF 939
Miete
CHF 4'137
Gesamtfläche
202
Verfügbar ab
Nach Vereinbarung
Adresse
Via la Val 1
7013 Domat/Ems

Details

Stockwerk0
Baujahr2015

Übersicht

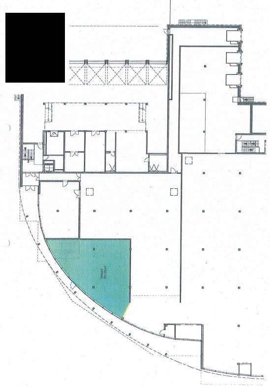
Ladenlokal im Plarenga Center zu vermieten

Im Plarenga Center in Domat/Ems vermieten wir per sofort oder nach Vereinbarung ein geräumiges und ansprechendes Ladenlokal mit Lagerfläche und Kundenparkplätzen, welches sich durch folgende Merkmale auszeichnet:

- helle Räumlichkeiten

- grosse, einladende Fensterfront im Erdgeschoss

- grosszügige Ausstellungsfläche

- Küche, Labor und Sanitäranlage

Die Ladenfläche im Ergeschoss beträgt ca. 202 m2.

Die Lagerfläche im Untergeschoss beträgt ca. 75 m2.

Die Liegenschaft befindet sich am nördlichen Ortseingang der Gemeinde Domat/Ems, an die stark frequentierte Kantonsstrasse angrenzend. Eine hervorragende Sichtanbindung ist somit garantiert. Unmittelbar neben dem Plarenga-Center befindet sich das Quartier Ardisla. Dies wiederum bietet Gewähr für eine optimale Kundennähe.

Das Plarenga-Center ist verkehrstechnisch sehr gut erschlossen. Ob Bus oder Bahn, beides ist in unmittelbarer Nähe zu Fuss erreichbar. Auch die Ein-/Ausfahrt zur Nationalstrasse A13 - eine der wichtigsten Verbindungsachsen - ist nur wenige Kilometer vom Plarenga-Center entfernt.

Auto-Einstellplätze können für monatlich CHF 130.00 hinzugemietet werden.

Haben wir Ihr Interesse geweckt? Rufen Sie uns für einen unverbindlichen Besichtigungstermin an.

Wir freuen uns, von Ihnen zu hören!

Standort

Via la Val 1, 7013 Domat/Ems
Publikationsdatum: 27. August 2024
Objekt-ref.: 14063.01.0008
PriveraAG
Privera AG
Privera AG