Ladenfläche in Genf, Rue Mairie 3 / Eaux-Vives 12

Ladenfläche
Mietaufschlüsselung
Nettomiete
CHF 3'300
Nebenkosten
CHF 100
Miete
CHF 3'400
Gesamtfläche
Auf Anfrage
Verfügbar ab
Nach Vereinbarung
Adresse
Rue Mairie 3 / Eaux-Vives 12
1207 Genf

Details

Stockwerk1

Übersicht

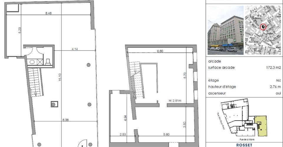
Arcade d'environ 94 m² dont 70 m² au sous-sol

Grande Arcade située au cœur des Eaux-Vives à la rue de la Mairie 3.

Profitez de la position stratégique, près des transports publics et des commodités. Cet emplacement central est une opportunité pour votre activité.

Elle se compose comme suit :

- Un grand espace de vente

- Un grand dépôt de stockage attenant au rez-de-chaussée

- Un sanitaire

Environnement:

Proche du lac, Rue commerçante, Banque, Poste, Restaurants, salle de fitness, Arrêt de bus(2,6,E), CEVA, tram

Standort

Rue Mairie 3 / Eaux-Vives 12, 1207 Genf
Publikationsdatum: 30. März 2026
Objekt-ref.: 3130.3131.6.13
KhaledGHOULEM
Khaled GHOULEM
ROSSET & CIE SA