117 m² Ladenfläche in St. Gallen, Rosenbergstrasse 32

Ladenfläche
Mietaufschlüsselung
Miete
CHF 3'725
Gesamtfläche
117
Verfügbar ab
Nach Vereinbarung
Adresse
Rosenbergstrasse 32
9000 St. Gallen

Details

Stockwerk0

Übersicht

Ihr Lokal in Bahnhofsnähe!

Der aktuelle Ausbau

Die Ladenfläche verfügt über folgenden Ausbau:

- bodentiefe Schaufenster

- WC zur Mitbenützung

Das Wichtigste

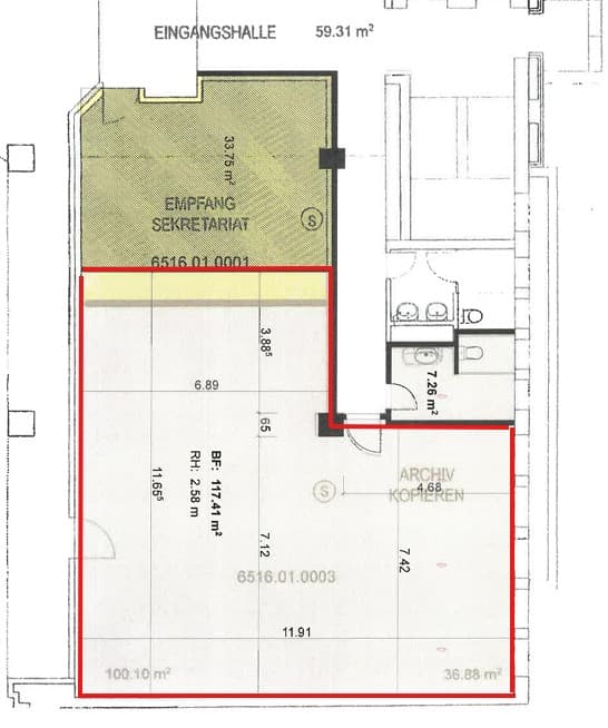
Die Ladenfläche befindet sich im Erdgeschoss und wirkt dank Fenstern hell und einladend. Die Fläche von ca. 117.40 m² kann per 01.05.2026 oder nach Vereinbarung bezogen werden. Die Räumlichkeiten eignen sich wunderbar um Ihre eigenen Visionen zu verwirklichen.

Die Lage

Das Geschäftshaus befindet sich an zentraler Lage nur wenige Gehminuten vom Bahnhof St. Gallen entfernt, der Bahnhof wird von regionalen und interregionale Zugverbindungen bedient. Die Liegenschaft ist dank des nahegelegenen Autobahnanschlusses in Richtung Zürich sowie in Richtung St. Margrethen direkt an das Autobahnnetz angeschlossen. Diverse Restaurants und Take-Aways befinden sich ebenfalls in unmittelbarer Nähe.

Na, Interesse geweckt? Für einen unverbindlichen Besichtigungstermin dürfen Sie sich gerne jederzeit bei uns melden!

Ausstattung

Tierfreundlich

Standort

Rosenbergstrasse 32, 9000 St. Gallen
Publikationsdatum: 3. Februar 2026
Objekt-ref.: 6516.01.0003
EvaHuditz
Eva Huditz
Livit AG